the Cavalry has arrived…

Cavalry Headquarters, Berlin 2022

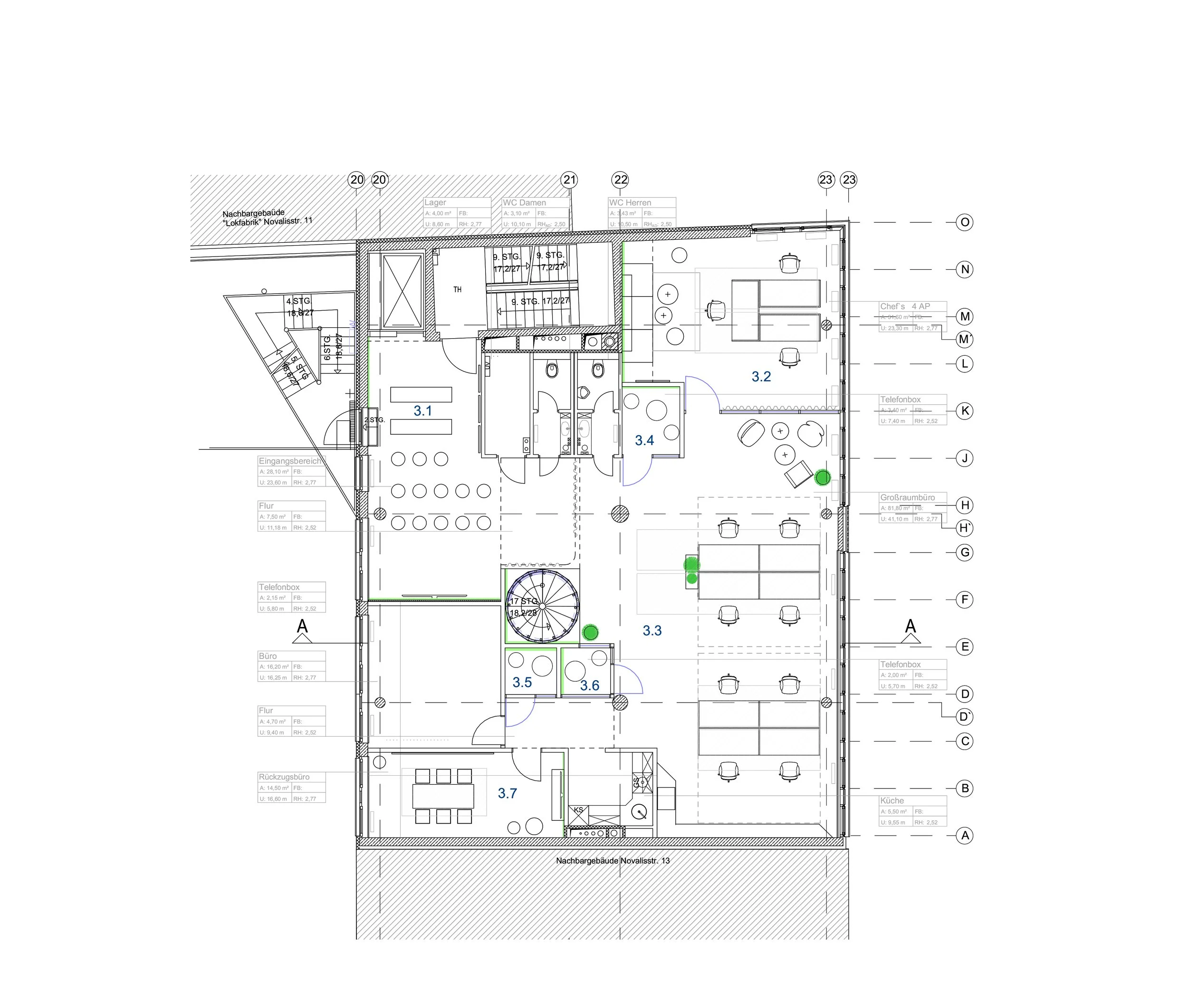
During my time at nod studios in Berlin, I had the opportunity to design the office space for Cavalry Ventures. The project's main objective was to create a space that not only reflected Cavalry Ventures' corporate identity but also embodied their new logo's playful and daring character. With this in mind, I embarked on a design journey that would showcase the company's values and create an inspiring and dynamic work environment.

This video, owned by nod studios, is being used solely for the purpose of showcasing my portfolio and promoting nod studios.

The office design concept revolved around incorporating the vibrant colors and bold shapes from Cavalry Ventures' logo into the physical space. The bright green representing the company strategically infused throughout the office, adding pops of energy and creativity and encouraging innovation. The furniture and layout were carefully selected to encourage collaboration and interaction among team members, fostering a sense of community.

To further enhance the playful and daring character of the company, interactive elements were integrated into the design.

A striking feature was the central lounge area, where a custom-designed wall displayed the latest startup projects and investments and the logo was represented by a light sign. This served as a dynamic focal point in the space.

To bring the vibrant and daring character of Cavalry Ventures to life, the office design incorporated the company's signature color, a lively and vibrant green, into various custom-made elements.

From custom-designed storage and customized workstations with green accents to sleek shelving units featuring the bold hue, the office exuded a sense of energy and creativity.

The meeting rooms were adorned with filigree green elements, creating a modern and dynamic atmosphere for collaboration and idea generation.

Additionally, custom wall graphics and artwork showcased abstract interpretations of the company's logo, employing the vibrant green as a focal point.

These custom-made elements not only infused the office with Cavalry Ventures' corporate color but also reinforced the company's identity as a fearless and innovative player in the venture capital landscape.

The carefully selected upholstery on the furniture was complimented by the sleek and modern metal elements, so that the vibrant green color became a unifying thread throughout the design.

Overall, the design of Cavalry Ventures' office successfully captured the essence of the company's corporate identity, while also infusing a sense of playfulness and boldness. The space became a testament to their commitment to innovation and creativity, providing an inspiring environment for their team to thrive and excel in the fast-paced world of venture capital.